Business

New businesses confirmed at the site of the former Walmart in Ceres

Ceres City Councilmember Cerina Otero announced that Dutch Bros and Take 5 Oil Change have been approved as tenants at the site of the old Walmart on Hatch and Mitchell Roads.

Otero made the announcement on Facebook on February 18 and also listed Vallarta Supermarket, Ross Dress for Less, and Five Below as potential tenants.

​“This will be a great opportunity to bring more business to this side of town again,” said Otero told The Bee on Monday. “The parcel at the site of the former Walmart has a lot of potential, and we have had a lot of interest in that location,” she said.

She said the parcel will be split into seven parcels and it is likely that Vallarta, Ross Dress for Less and Five Below will occupy at least three of those spots, but details are still being finalized. No official timeline on when construction will start on the Dutch Bros and Take 5 Oil Change, but Otero said the coffee shop will likely begin around April.

​This will be the third Dutch Bros. in the city, joining the recently opened location on Whitmore Ave. and the one on Herndon Ave, which opened in 2023. This will be the third Take 5 Oil Change in the region, with two locations open in Modesto.

​Just down the road on Hatch, the former KFC and Rite Aid are still vacant. Otero said there has been interest in both spaces, but they do not have a prospective business yet.

​Further down on Hatch, Crunch Fitness is now open at 1611 E. Hatch Road in a building previously occupied by Big Lots and next to Grocery Outlet.

The gym chain Crunch Fitness soon will have locations in  Ceres and Merced.
The gym chain Crunch Fitness soon will have locations in Ceres and Merced. Mike Haskey mhaskey@ledger-enquirer.com

The popular gym touts a “No Judgments” philosophy and offers Olympic platform weightlifting, a high-intensity interval training area, the latest equipment, and group fitness classes. They are offering a grand opening special with memberships for $1 down and the first month free, then starting at $9.99 per month. It is the first Crunch Fitness in Stanislaus County; the closest other location is in Tracy, which opened last August.

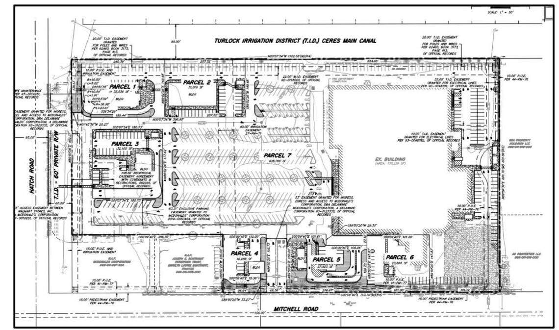
Plans for the parcel previously occupied by Walmart. The space will be divided into seven parcels with Vallarta Supermarkets, Ross Dress for Less and Five Below as likely tenants. Dutch Bros and Take 5 Oil Change have been confirmed and will begin construction in the coming months.
Plans for the parcel previously occupied by Walmart. The space will be divided into seven parcels with Vallarta Supermarkets, Ross Dress for Less and Five Below as likely tenants. Dutch Bros and Take 5 Oil Change have been confirmed and will begin construction in the coming months. Image posted on a Facebook Post by Ceres City Councilmember Cerina Otero.
Maria Luisa Figueroa
The Modesto Bee
Reporter Maria Luisa Figueroa covers the local economy, including trends in retail, employment and local spending. She is a Modesto native and attended San Francisco State University.
Get unlimited digital access
#ReadLocal

Try 1 month for $1

CLAIM OFFER